Need a prelim site plan? Call us @ (305) 413-0294 or email [email protected] Subject: Site Plan Request

We’ve come a long way, and have much longer to go…
Apologies for disrupting the Sunday night cadence friends, fortunately I have many women figures in my life who are all mothers and they needed my full attention.
This Monday we will change it up and share a featured service we are fine tuning related to the site plan creation process.
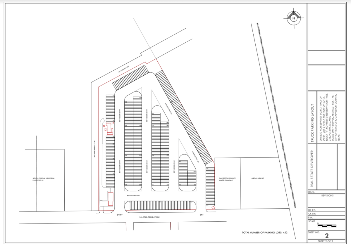
At Rig Hut, we are proud to provide preliminary, conceptual only site plans for properties looking to be converted into truck parking lots. With experience doing hundreds of these across the country for operators and investors (many reps…), we have fine-tuned our process to make the plans as efficiently designed for truck parking as possible, ensuring maximum capacity and appeasing both sides of the transaction.
Truck parking is an essential aspect of the logistics industry, with truck drivers needing safe and secure places to park their vehicles while on the road. As the demand for truck parking increases, so does the need for well-designed truck parking lots. That's where Rig Hut comes in, providing conceptual design services to help ensure that the conversion of sites into truck parking lots is done efficiently and effectively.
Once we have gathered all the necessary information, we begin designing the truck parking lot with maximum capacity in mind. We optimize the layout and ensure that every inch of space is utilized to its fullest potential. Our goal is to provide our clients with a well-designed, efficient truck parking lot that meets the needs of both truck drivers and operators/investors.
It’s important to note that we are not design professionals and our site plans are to be used for conceptual purposes only. Our goal is to maximize the parkeable area given the existing dimensions of the property but does not take into account any municipal code requirements in any capacity. The goal is to get you a maximum efficiency site plan that you may take to your local design professional, and have them get as close as possible to this plan while abiding by local code regulations.
These plans are designed to save time on billing and help licensed architects, engineers, and contractors better understand your specific requirements and vision for the truck parking lot. By providing conceptual site plans from the start, we streamline the communication process and ensure that all parties involved are on the same page, leading to more efficient project execution. This collaborative approach allows licensed professionals to focus their expertise on bringing your vision to life while minimizing potential revisions and delays.
At Rig Hut, we understand that the success of a truck parking lot depends on its capacity to accommodate as many trucks as possible while still ensuring a safe and secure environment for drivers. Our experience and expertise in site planning enable us to design truck parking lots that maximize capacity.
Moreover, we work closely with our clients throughout the site planning process to ensure that their specific needs are met. We listen carefully to their feedback and make any necessary adjustments to the design to ensure that the final product meets their expectations.
In conclusion, at Rig Hut, we are proud to offer expert site planning services for truck parking lot conversions. Our years of experience and fine-tuned process ensure that we design truck parking lots that are efficient, safe, and meet the needs of both drivers and investors. If you're in need of a preliminary site plan for a truck parking lot, don't hesitate to contact us for a consultation.

Ta-da!
Relevant Re-Tweet of the week…:

Our client here in Davie.
Company Journey Update 🛠⛏🔩⚙
As always thank you for subscribing. We have chosen to use this as a medium to not only share what we are building but help shed light on what we are seeing day in and day out. We believe this business is going to have a strong few of lasting players and it is our intention to play the long game with them and work together for ultimate success. If you are in the business or would like to be, reach out, we are always happy to. connect. We have had and continue to have many before us pay it forward and it is only right we do the same.

